Shanghai Yali household villa elevator sales center

不断完善企业“品牌、文化、团队、机制”建设,为客户的家居环境保驾护航






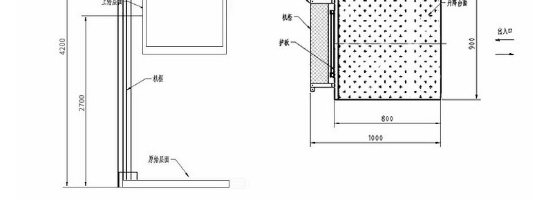
家用别墅电梯:
载重:200kg-500 kg
材质:304#镜面/发纹不锈钢--钢化玻璃--钛镁合金--钛金蚀刻
控制方式:数显控制
售后:质保一年、终身提供维修服务
驱动系统:液压驱动;
运行方式:液压本泵站控制;
安装方式:厂家包含安装一般无需底坑
外控装置:外呼盒分别安置于设备上、下停层附近墙面
安全联锁:任何非正常操作时,电梯不能运行;
紧急下降:无电或故障时,手动下降装置.如果安装了应急平层装置可用应急平层可以继续下降到就近层站平层停止。
备案号:沪ICP备12031905号-3 技术支持:亘安信息